Commencez par déballer votre R_volution Chassis DIY-X700 et ouvrez la boîte d'accessoires. Vous y trouverez un lot de vis et deux tournevis.

A. R_volution Chassis DIY-X700.
B. Kit de montage en rack.
C. Piles.
D. Câble d'alimentation.
E. Télécommande.
F. Câble HDMI
G. Accessoire de démontage.

Puis, ouvrez la boîte de votre lecteur Sony UBP-X700 et sortez le lecteur. La première étape va être de le démonter et récupérer la carte mère et le bloc optique.
Prenez le tournevis cruciforme fourni et dévissez les 3 vis du couvercle situées à l'arrière du lecteur Sony.

Commencez par la vis de gauche.

Puis, dévissez celle du centre.
Enfin, dévissez celle de droite.

Puis, faites glisser le capot vers l'arrière de l'appareil en plaçant vos index sur l'avant du châssis.

Puis, retournez le lecteur et localisez la vis située à côté d'une flèche.
Puis, toujours à l'aide du tournevis cruciforme, dévissez la vis. Mettez toutes les vis de côté. Vous n'en n'aurez plus besoin pour le R_volution Chassis DIY-X700 mais conservez-les dans un sachet au cas où vous aurez besoin de remonter le lecteur Sony pour un retour en SAV ou une revente d'occasion plus tard.
Puis, prenez le désassembleur bleu fourni. C'est un outil spécialement dédié à l'ouverture des châssis.

Commencez par déclipser le côté droit, puis maintenez la façade pour éviter qu'elle ne se reclipse.

Continuez en déclipsant le milieu.
Puis, terminez pas le côté gauche, ce qui vous permettra de retirer complètement le panneau frontal du lecteur.

Lorsque c'est fait, retournez le lecteur et localisez la nappe qui retiens le lecteur.
Puis, retirez la nappe en la tirant vers le haut.

Puis, retirez les 4 nappes indiquées par les flèches du schéma ci-dessus.

Puis, dévissez les 7 vis indiquées par les flèches du schéma ci-dessus à l'aide du tournevis cruciforme.
Puis, à l'arrière du lecteur, dévissez les 3 vis indiquées par les flèches du schéma ci-dessus (le 2 ports HDMI et le port Coaxial).
Ensuite, retirez la carte mère en la tirant vers le haut en la saisissant par le radiateur.

Puis, dévissez les 4 vis qui fixent le bloc optique au châssis à l'aide du tournevis cruciforme.

Commencez par dévisser les deux vis du côté droit du bloc optique.

Puis, dévissez les 2 vis du côté gauche du bloc optique.

Une fois les 4 vis enlevées, retirez le bloc optique du châssis du lecteur Sony.

Puis, à l'aide du tournevis cruciforme, retirez la vis qui fixe la carte Wi-Fi du lecteur Sony qui se trouve sur le côté droit du châssis du lecteur Sony. Cette carte n'est présent que sur certaines version du lecteur Sony. Si vous ne voyez pas cette carte, passez à l'étape suivante.

Retirez la nappe qui relie la carte Wi-Fi au châssis du lecteur Sony.

Utilisez votre pouce et votre index et tirer sur la nappe pour la dégager du connecteur et libérer la carte Wi-Fi. Puis, mettez la carte de côté.

Localisez la vis placée à l'arrière du R_volution Chassis DIY-X700. Puis, dévissez la à l'aide du tournevis allen.

Puis, retournez le lecteur et dévissez la vis située à droite du pied droit, près de la face avant à l'aide du tournevis allen.

Puis, localisez la vis placée près du pied situé dans l'angle opposé dévissez à l'aide du tournevis allen.

Retournez le Chassis DIY-X700 et posez-le sur ses pieds. Puis, retirez le capot en le tirant vers l'arrière.

Puis, prenez le bloc optique que vous avez mis de côté précédemment et retournez-le. Sur le dessous du bloc optique, localisez la bande de ruban adhésif de couleur noire qui fixe la nappe la plus large au bloc optique.

Retirez-là à l'aide de votre pouce et de votre index.

Une fois la nappe libérée de l'adhésif noir, tirez légèrement sur la nappe pour l'étendre et l'aplanir.

Ensuite, retournez le bloc optique et faites passer la nappe sous la carte électronique avec les gros condensateurs et placez le bloc optique à son emplacement.

Tirez bien la nappe pour quelle sorte bien du dessous de la carte électronique. Puis, placez correctement le bloc optique sur son emplacement.
Puis, à l'aide du tournevis cruciforme, vissez le bloc optique à l'aide des vis du sachet numéro 1.

Respectez les emplacements des vis comme indiqué ci-dessus et prenez soin de bien visser le bloc optique afin qu'il ne bouge pas de son emplacement pour qu'il ne vibre pas pendant la lecture. Notez que le bloc optique est monté sur un système anti-vibration afin d'améliorer la qualité de lecture par rapport au lecteur Sony d'origine.

Puis, dévissez la petite carte surélevée positionnée à côté du bloc optique à l'aide du tournevis cruciforme.

Il y a 2 vis à dévisser, à l'aide du tournevis cruciforme. Puis, retirez la carte et mettez-là de côté. Nous en aurons besoin plus tard.

Ensuite, il faut dévisser la carte qui se trouve à l'emplacement indiqué par la flèche ci-dessus.

Il n'y a qu'une seule vis à dévisser à l'aide du tournevis cruciforme.

Puis, mettez la carte sur le côté (au dessus de la carte électronique) sans retirer le câble.

Puis, dévissez les deux entretoises comme indiqué sur le schéma ci-dessus.

Si votre lecteur Sony est compatible Wi-Fi, vous devriez précédemment avoir retiré la carte Wi-Fi du châssis du lecteur Sony. Reprenez la carte Wi-Fi mise de côté. Dans le R_volution Chassis DIY-X700, localisez la petite nappe qui va vers la façade.

Puis, connectez la nappe sur la carte Wi-Fi.

Puis, vissez la carte Wi-Fi sur le panneau avant avec une vis du sachet numéro 8 à l'aide du tournevis cruciforme.
ATTENTION ! Il est impératif d'utiliser une vis du sachet numéro 8 ! L'utilisation d'une autre vis pourrait endommager la façade du châssis.

Ensuite, récupérez la carte mère du lecteur Sony ainsi que l'entretoise et l'écrou du sachet numéro 5. Puis, insérez l'entretoise dans le trou comme indiqué sur le schéma ci-dessus.

Puis, retournez la carte et vissez l'écrou sur l'entretoise. 
Lorsque c'est fait, prenez les éléments du sachet numéro 7 :
- 1 cube noir
- 2 pates thermiques blanches
Prenez le cube et placez la première pâte thermique sur l'une des faces.

Puis, retournez le cube à 180 degrés, et placez la seconde pâte thermique sur la face opposée à la prmière.
Au final, vous aurez une pâte thermique sur deux faces opposées du cube noir.

Localisez le groupe de micro semi-conducteurs situé entre les 4 grosses soudures.

Puis, placez-y le cube, face pâte thermique vers le bas et pressez fortement.
Retournez la carte mère et placez-la dans le chassis R_volution. Puis connectez la nappe qui vient du bloc optique et passe sous la carte électronique.

Puis, placez la carte mère sur son emplacement en prenant soin de positionner les connecteur HDMI dans les trous dédiés dans la face arrière du châssis R_volution.

Une fois que la carte mère est en place, il y a 2 vis à mettre. Utilisez les vis du sachet numéro 1 et vissez-les en utilisant le tournevis cruciforme.

Puis, vissez les deux entretoises retirées précédemment aux endroits indiqués par les flèches sur le schéma ci-dessus.

Placez ensuite la carte électronique en longueur que nous avions écartée précédemment. Positionnez-la par dessus les entretoises situées près de l'arrière du châssis R_volution.

Puis, prenez 2 vis du sachet numéro 1 et vissez-les sur la carte électronique en longueur à l'emplacement indiqué par la flèche du schéma ci-dessus à l'aide du tournevis cruciforme.

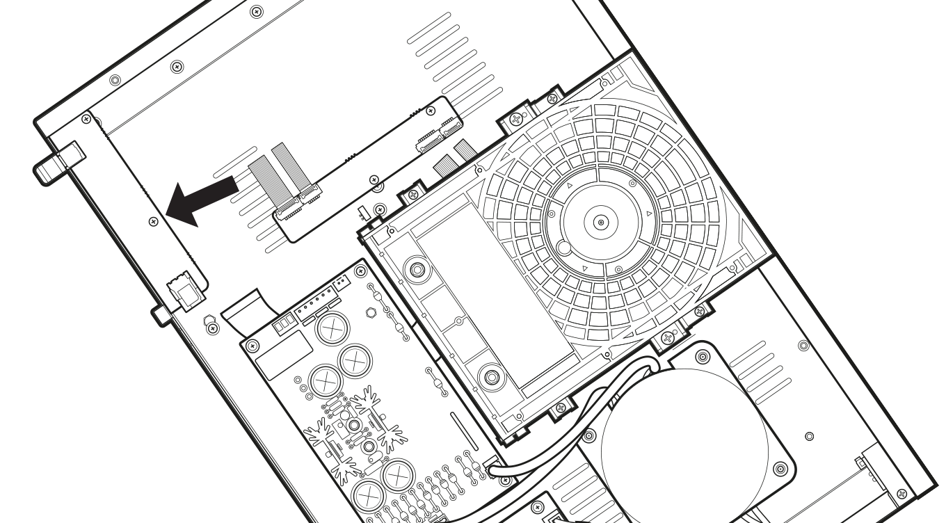
Puis, il y a deux nappes à connecter sur la carte mère. Commencez par connectez la nappe la plus large sur le connecteur indiqué par la flèche du schéma ci-dessus.

Ensuite, connectez la petite nappe qui se trouve près du bloc optique.

Puis, prenez la petite carte en longueur avec les deux connecteurs de nappes vides. Sur chacun des deux connecteurs, levez le clapet qui empêchent l'insertion des nappes.

Puis, insérez la petite nappe dans le petit connecteur et refermez le clapet.

Procédez de la même manière pour la grosse nappe qui relie le bloc optique à la petite carte électronique en longueur. Insérez la nappe dans le gros connecteur et refermez le clapet.

Il reste les deux nappe de la carte à connecter, indiquées par les flèches sur le schéma ci-dessus.

Connectez les deux nappes dans les emplacements dédiés sur la carte mère située juste en dessous.

Ensuite, prenez 2 vis du sachet numéro 1 et vissez la carte électronique en longueur avec les 2 vis à l'aide du tournevis cruciforme.

Il reste les connecteurs HDMI à fixer. Pour cela, prenez les vis du sachet numéro 3 et utilisez le tournevis allen fourni pour les visser.

Faites de même pour le connecteur coaxial. Utilisez une vis du sachet numéro 3 et vissez-la à l'aide du tournevis allen fourni.

Puis, prenez le capot du châssis et faites le glisser par dessus en partant de l'arrière de l'appareil. 
Si vous avez des difficultés à terminer la fermeture du capot, utilisez l'outil fourni pour lever légèrement le capot qui pourra terminer sa fermeture.

Prenez 4 vis dans le sachet numéro 2 et vissez-les aux emplacement indiqués par les flèches sur le schéma ci-dessus pour fixer le capot. Utilisez le tournevis allen.

Enfin, il reste 4 vis à visser sous le châssis. Retournez le châssis. Puis, toujours avec les vis du sachet numéro 2, vissez 4 vis dans les trous qui se trouvent sur les côtés latéraux du dessous, près des pieds. 
Vissez la seconde vis dans le trou situé près du pied arrière gauche.
Faites de même pour les deux autres trous situés à l'opposé.

Dans le sachet numéro 6, récupérez l'adaptateur en U et connectez-le à l'emplacement dédié sur le côté gauche de l'arrière de l'appareil. Cet adaptateur permet de relier la carte mère à l'alimentation linéaire R_volution.

L'adaptateur est muni d'un détrompeur. Ainsi, vous ne pourrez pas vous tromper de sens lorsque vous le connecterez.
Et voilà ! Votre lecteur est fin prêt !
Cet article a-t-il été utile ?
C'est super !
Merci pour votre commentaire
Désolé ! Nous n'avons pas pu vous être utile
Merci pour votre commentaire
Commentaires envoyés
Nous apprécions vos efforts et nous allons corriger l'article